DL型立式多級離心泵產品概述
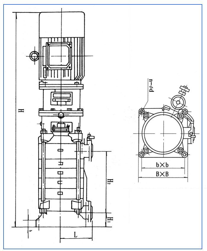
DL立式多級離心泵是采用國家推薦使用的節能產品IS型泵的水力模型,為立式多級多節段式結構。螺桿把進水段、中段、出水段夾緊聯成一體。水泵每一級 裝一個葉輪、一個導水葉。軸向力采用水力平衡法解決,殘余軸向力由球軸軸承承受,用油脂潤滑。軸封采用軟填料或機械密封。產品執行JB/T2727-93 《立式多級離心泵型式與基本參數》標準,主要供吸送稀釋的、清潔的、不腐蝕的、不爆炸的清水及物理化學性質類似水的不含固體顆?;蚶w維的液體。
DL立式多級離心泵采用計算機設計和優化處理,公司擁有雄厚的技術力量、豐富的生產經驗和完善的檢測手段,從而保證產品質量的穩定可靠。
DL型立式多級離心泵適用范圍
立式離心泵廣泛應用于高層建筑的消防、生活供水以及空調機組循環、冷卻水輸送。
DL型立式多級離心泵產品特點
1、水力模型先進:效率高,性能范圍廣。
2、結構新穎,運行可靠:取消了平衡鼓,其軸向力采用水力平衡,徹底解決了平衡鼓易銹蝕、易咬死、易磨損的問題,保證了運行更加可靠。
3、更少的運行、維修費用:采用良好機械密封,耐磨損、無泄漏、使用壽命長,故障率低,具有更少的運行維修費用。
4、運行平穩,噪音低:采用低轉速電機,使泵運行平穩,噪音更低。
5、立式結構,占地面積小。
DL型立式多級離心泵型號意義

DL型立式多級離心泵型號
型 號 | 級 數 | 口徑 (mm) | 流量 (m3/h) | 揚程 (m) | 功率 (KW) | 轉速 (r/min) | 汽蝕余量 (m) |
40DL(DLS)6-12 | 2 | 40 | 6 | 24 | 1.5 | 1480 | 3.2 |
3 | 36 | 2.2 | |||||
4 | 48 | 3 | |||||
5 | 60 | 4 | |||||
6 | 72 | 4 | |||||
7 | 84 | 5.5 | |||||
8 | 96 | 5.5 | |||||
9 | 108 | 7.5 | |||||
10 | 120 | 7.5 | |||||
11 | 132 | 7.5 | |||||
12 | 144 | 11 | |||||
50DL(DLS)12.5-12.5 | 2 | 50 | 12.5 | 25 | 3 | 1480 | 2.2 |
3 | 3.75 | 3 | |||||
4 | 50 | 4 | |||||
5 | 62.5 | 5.5 | |||||
6 | 75 | 7.5 | |||||
7 | 87.5 | 7.5 | |||||
8 | 100 | 7.5 | |||||
9 | 112.5 | 11 | |||||
10 | 125 | 11 | |||||
65DL(DLS)30-15 | 2 | 65 | 30 | 30 | 5.5 | 1480 | 2.82 |
3 | 45 | 7.5 | |||||
4 | 60 | 11 | |||||
5 | 75 | 15 | |||||
6 | 90 | 15 | |||||
7 | 105 | 18.5 | |||||
8 | 120 | 22 | |||||
9 | 135 | 22 | |||||
10 | 150 | 30 | |||||
80DL(DLS)50-20 | 2 | 80 | 50 | 40 | 11 | 1480 | 2.2 |
3 | 60 | 15 | |||||
4 | 80 | 22 | |||||
5 | 100 | 30 | |||||
6 | 120 | 3. | |||||
7 | 140 | 37 | |||||
8 | 160 | 45 | |||||
9 | 180 | 45 | |||||
10 | 200 | 55 | |||||
100DL(DLS)72-20 | 2 | 100 | 72 | 40 | 15 | 1480 | 2.8 |
3 | 60 | 18.5 | |||||
4 | 80 | 30 | |||||
5 | 100 | 37 | |||||
6 | 120 | 37 | |||||
7 | 140 | 45 | |||||
8 | 160 | 55 | |||||
9 | 180 | 55 | |||||
10 | 200 | 75 | |||||
100DL(DLS)100-20 | 2 | 100 | 100 | 40 | 18.5 | 1480 | 2.8 |
3 | 60 | 30 | |||||
4 | 80 | 37 | |||||
5 | 100 | 45 | |||||
6 | 120 | 55 | |||||
7 | 140 | 75 | |||||
8 | 160 | 75 | |||||
9 | 180 | 90 | |||||
10 | 200 | 90 | |||||
150DL(DLS)150-20 | 2 | 150 | 150 | 40 | 30 | 1480 | 2.8 |
3 | 60 | 37 | |||||
4 | 80 | 45 | |||||
5 | 100 | 55 | |||||
6 | 120 | 75 | |||||
7 | 140 | 90 | |||||
8 | 160 | 90 | |||||
9 | 180 | 110 | |||||
10 | 200 | 132 | |||||
150DL(DLS)165-20 | 2 | 150 | 160 | 50 | 37 | 1480 | 3.5 |
3 | 75 | 55 | |||||
4 | 100 | 75 | |||||
5 | 125 | 90 | |||||
6 | 150 | 110 | |||||
7 | 175 | 132 | |||||
8 | 200 | 132 | |||||
9 | 225 | 160 | |||||
10 | 250 | 160 | |||||
150DL(DLS)200-20 | 2 | 150 | 200 | 40 | 37 | 1480 | 3.5 |
3 | 60 | 55 | |||||
4 | 80 | 73 | |||||
5 | 100 | 90 | |||||
6 | 120 | 110 | |||||
7 | 140 | 110 | |||||
8 | 160 | 132 | |||||
200DL(DLS)300-20 | 2 | 200 | 300 | 40 | 55 | 1480 | 5 |
3 | 60 | 75 | |||||
4 | 80 | 110 | |||||
5 | 100 | 132 | |||||
6 | 120 | 160 | |||||
7 | 140 | 160 | |||||
8 | 160 | 200 |
DL型立式多級離心泵適用范圍
DL型立式多級離心泵廣泛應用于高層建筑的消防、生活供水以及空調機組循環、冷卻水輸送。
DL型立式多級離心泵安裝結構表












